MM-003

A partir de

201.390 € HTVA

Surface totale

126 m²

Nombre de chambres

3

Nombre de salles d'eau

1

Votre maison clé sur porte optimisée

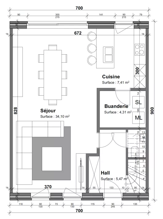
Cette maison optimisée est assurément un « best-seller » dans la catégorie habitat groupé. Idéale pour l’investissement en clé sur porte ou la vie en famille, elle présente un espace lumineux avec un salon donnant sur le jardin, une cuisine ouverte et une buanderie pratique. À l’étage : 3 chambres spacieuses et une salle de bain confortable avec baignoire et douche. Un véritable modèle de rationalité et de confort.

Hauteur sous corniche : 5,20 m

Surface au sol : 63 m2

Combles aménageables : 45 m2

Ce modèle vous intéresse ? Contactez-nous

Que comprend le prix de nos maisons clé sur porte ?

Nos offres détaillées et chiffrées poste par poste sont basées sur le cahier des charges ultra complet de Ma Maison, qui définit le vrai sens du mot "clé sur porte" pour vous garantir une maison "prête à vivre" et achevée jusque dans les moindres détails.

En plus des matériaux et des équipements de première qualité que l'on retrouve dans chacune de nos réalisations, nous allons encore plus loin !

Vous avez tout compris ! 
  • Les essais de sol et l'étude d'ingénieur en stabilité
  • Le certificat PEB et toutes les démarches administratives
  • Le coordinateur sécurité-santé
  • Le suivi du chantier par un conducteur attitré
  • L'évacuation des déchets inertes du chantier
  • L'aménagement des parkings et de la terrasse
  • Un chauffage par le sol 
  • Une pompe à chaleur (PAC air-eau)
  • Des châssis et portes bicolores au choix
  • Des aérateurs "invisivent" très discrets
  • Une ventilation mécanique type C+
  • L'escalier en béton carrelé
  • Le parquet posé dans les chambres
  • Les combles aménageables isolés avec plancher et escalier escamotable
  • Des sanitaires complets de chez Facq
  • Une citerne d'eau de pluie de 10.000 lit
  • Des tuiles en terre cuite ou des ardoises type "Eternit" au choix
  • Des planches de rives et de faces ardoisées
  • Un large choix de matériaux et de finitions de marques réputées...
  • Le nettoyage complet de votre maison en fin de chantier 

Et pour encore plus de tranquillité, vous pouvez choisir d'inclure directement dans votre devis :

  • La peinture des murs et des plafonds

  • La cuisine équipée

Restons en contact

Obtenez les actualités les plus importantes directement dans votre boîte mail

Retrouvez-nous aussi sur